您好,欢迎访问邵阳市家旺别墅建筑有限公司
新中式别墅

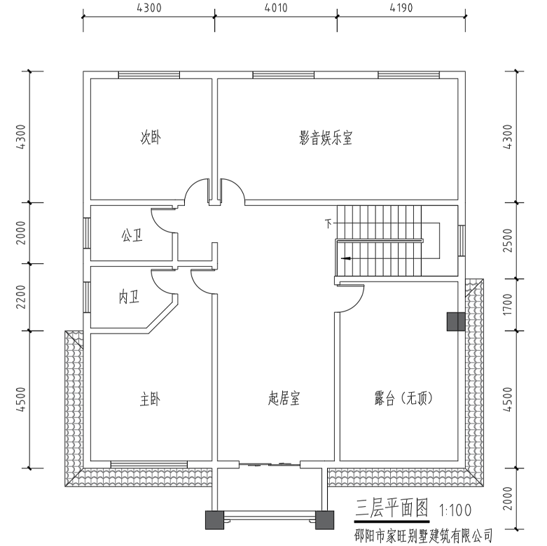
12.5×13米 三层新中式别墅 占地170.9平方 编号3128

发布时间:2023-06-10人气:225

12_07.gif

3.png

标签: