您好,欢迎访问邵阳市家旺别墅建筑有限公司
现代简约别墅

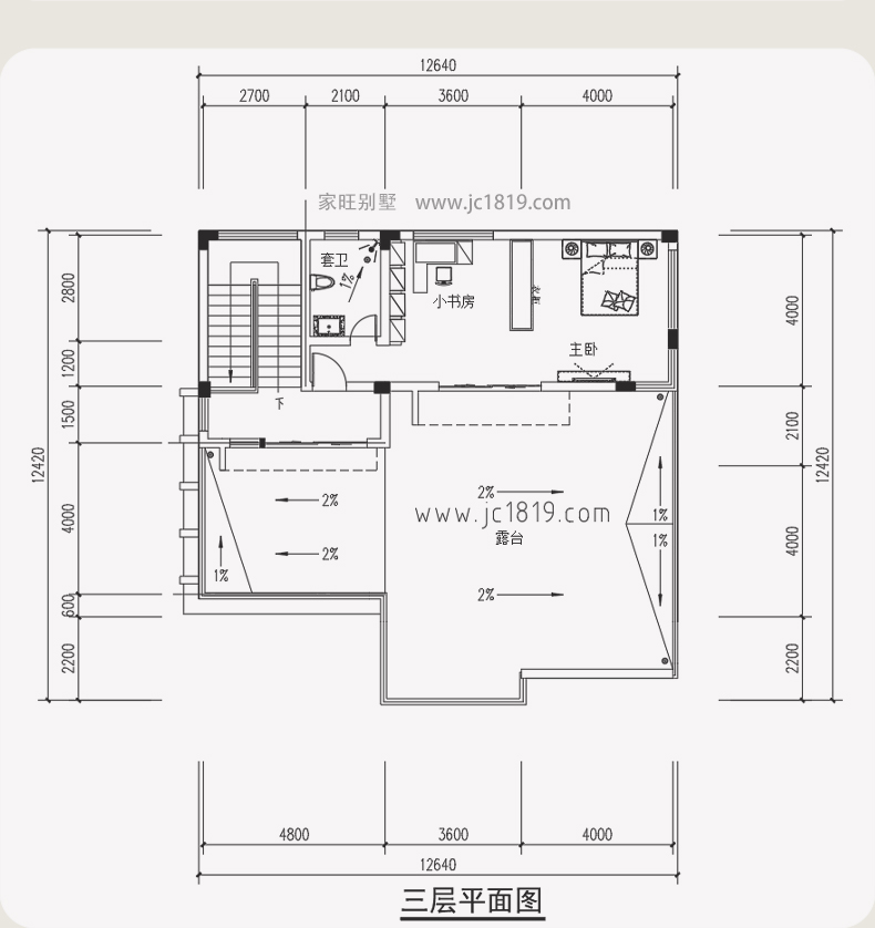
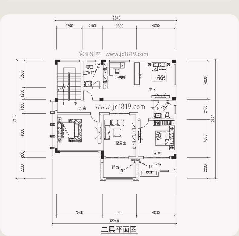
12.6×12.4米 三层现代别墅 占地面积:132平方 编号:202309281792

发布时间:2023-09-28人气:420

标签: