您好,欢迎访问邵阳市家旺别墅建筑有限公司
欧式别墅

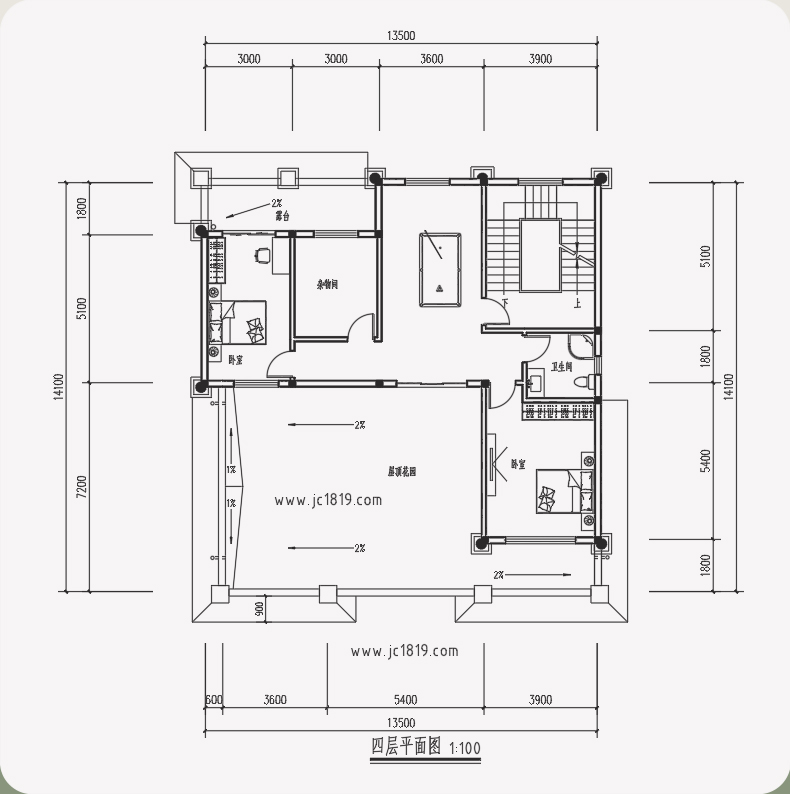
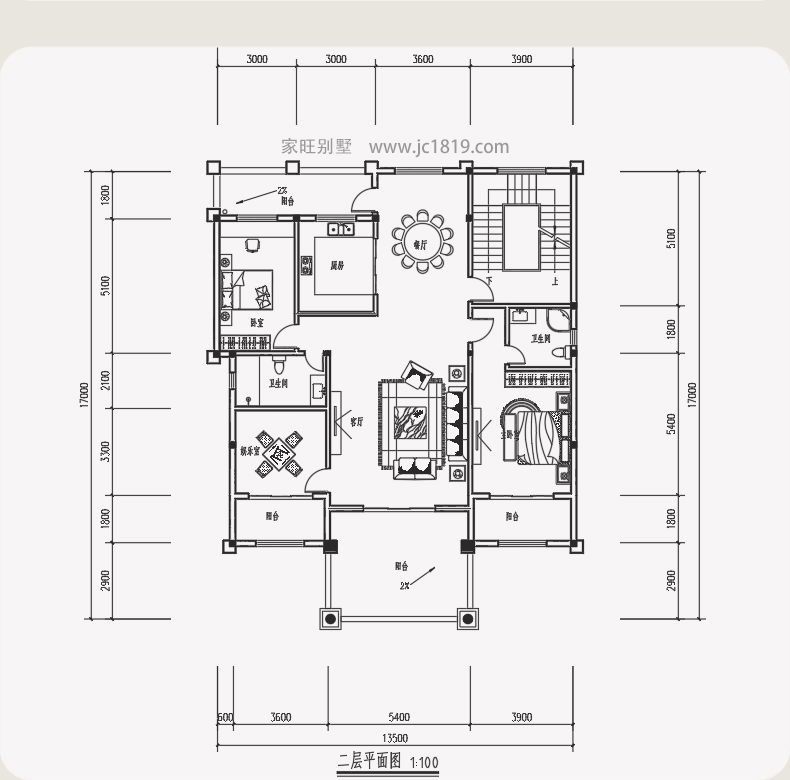
13.5×17米 三层半典欧式别墅 占地面积204.7平方 编号:202309281689

发布时间:2023-09-28人气:323

标签: