您好,欢迎访问邵阳市家旺别墅建筑有限公司
新中式别墅

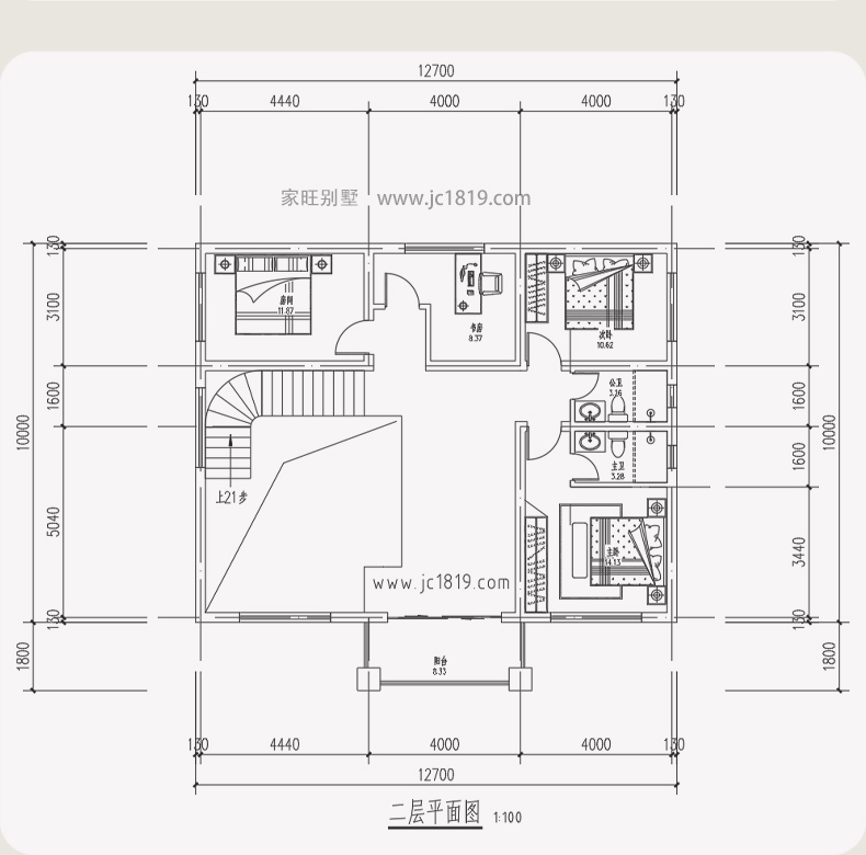
12.7×10米 两层新中式别墅 占地面积:133.94平方 编号:202309281973

发布时间:2023-09-28人气:221

标签: