您好,欢迎访问邵阳市家旺别墅建筑有限公司
新中式别墅

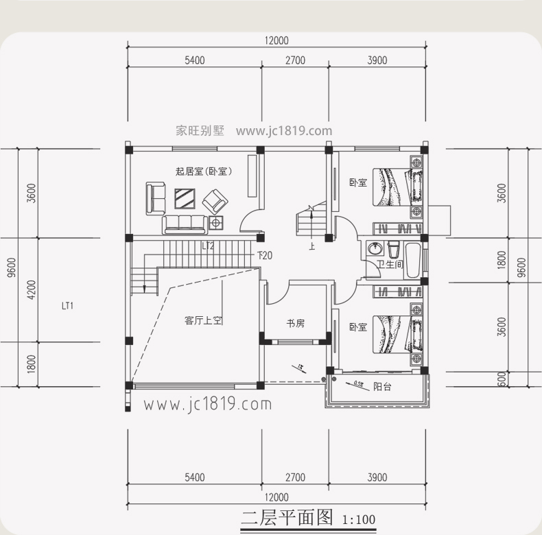
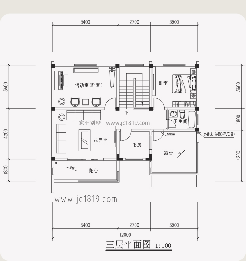
12×9.6米 三层中式别墅 占地面积 116平方 编号:202309281998

发布时间:2023-09-28人气:602

标签: