您好,欢迎访问邵阳市家旺别墅建筑有限公司
新中式别墅

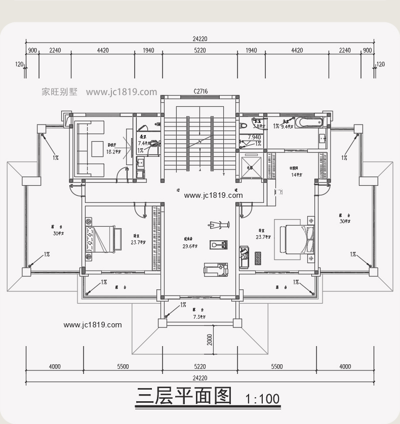
24.2×15.7米 五开间三层半新中式别墅 占地面积304.3平方 编号:202308091688

发布时间:2023-09-28人气:443

标签: